Projecten

Lees verder Bedrijfsunit met klassieke voorzetgevel in Almere
Studio Oosterwold heeft het architectonische ontwerp voor een nieuw te realiseren bedrijfspand aan de Harriet van Martineauweg in Almere vervaardigd. De unit van 796m2 valt op door de voorzetgevel die de standaard loods rondom een klassieke en bijzondere uitstraling geeft.
Lees verder
Lees verder Circulaire woning zonder betonfundering
Momenteel wordt deze vrijwel volledig circulaire vrijstaande woning ontworpen door Studio Oosterwold gerealiseerd zonder toepassing van een betonnen fundering en funderingsvloer! De opbouw van de woning is volledig gerealiseerd in houtskeletbouw, uitstekend geïsoleerd en voorzien van een energie neutrale installatie.
Lees verder
Lees verder Uitbreiding bestaande woning in Almere
Studio Oosterwold verricht het volledige traject van ontwerp tot vergunningsaanvraag t.b.v. de verbouwing en verduurzaming van een vrijstaande woning in Almere. Door de uitbreiding van 67m2 aan de achterzijde van de bestaande woning ontstaat een ruimte voor een riante woonkeuken en gastenverblijf voorzien van eigen opgang.
Lees verder
Lees verder Circulaire vrijstaande woning in Almere
Studio Oosterwold werkt momenteel aan deze circulaire vrijstaande woning. Deze woning wordt zonder beton gerealiseerd. De fundering bestaat uit buispalen i.c.m. stalen liggers. De opbouw van de woning wordt volledig gerealiseerd in houtskeletbouw. Door de uitstekende isolatie betreft dit een energie neutrale woning.
Lees verder
Lees verder Tuinontwerp voor een compacte stadstuin in Amsterdam-Zuid
Tuinontwerp voor een kleine stadstuin in Amsterdam-Zuid waarbij optimaal gebruik is gemaakt van de beschikbare ruimte. Een deel van de bestaande beplanting is gesnoeid, een ander deel verwijderd. En er zijn nieuwe struiken aangeplant, zo ontstaat een plek om in de schaduw te zitten. En te genieten van een kleine groene oase in de stad.
Lees verder
Lees verder Ontwerp circulaire nieuwbouwwoning Almere
Studio Oosterwold heeft in opdracht het volledige traject van schetsontwerp tot aanvraag vergunningen van een duurzame vrijstaande woning in Almere Oosterwold verricht. De woning is gerealiseerd in houtskeletbouw, is uitstekend geïsoleerd en voorzien van een energie neutrale installatie.
Lees verder
Lees verder Tuinontwerp en inrichtingsplan CPO Sjalot in Deventer
Studio Oosterwold heeft voor CPO-Sjalot het tuinontwerp en inrichtingsplan in nauwe samenwerking met de toekomstige bewoners ontwikkeld. Het betreft een natuurinclusief bouwproject waarin voorzieningen zijn opgenomen voor diverse vogels, insecten, vleermuizen en inheemse planten en struiken.
Lees verder
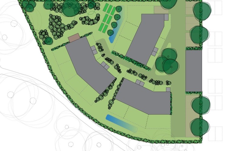
Lees verder Blauwe Zaden - duurzame projectontwikkeling
Studio Oosterwold werkt momenteel aan een aantal woon-werk projecten waaronder project ‘Blauwe Zaden’ waarin bedrijfsunits worden gerealiseerd waarvan een gedeelte van de BVO als woonruimte kan worden aangemerkt. Deze units hebben dus zowel een werkgedeelte als een officieel woongedeelte. Op deze wijze kun je wonen en werken perfect combineren.
Lees verder
Lees verder Tuinontwerp met diverse zones en functies
Tuinontwerp voor een gezin met twee jonge kinderen. De tuin met een oppervlakte van 1.380 m2 biedt ruimte voor stadslandbouw, ingevuld als moestuin en/of boomgaard, opvang voor regenwater en een eigen systeem voor rioolwaterzuivering. Daarnaast is een speelveld voor balspelletjes en een relaxplek voor de bewoners gerealiseerd.
Lees verder
Lees verder Verbouwing woning in Baarn
Studio Oosterwold heeft in opdracht het ontwerp voor de verbouwing incl. verduurzaming van een vrijstaande woning uit 1960 in Baarn gerealiseerd. De woning is qua plattegrond en gevelaanzichten aangepast aan de huidige eisen en wensen. De woning is o.a. voorzien van een nieuw, verhoogd en geïsoleerd dak.
Lees verder
Lees verder Winnend prijsvraagontwerp voor Hortus Oculus
Studio Oosterwold wint de prijsvraag voor het ontwerp en realisatie van de Hortus Oculus in Delft. De beelden tuin speciaal voor mensen met een visuele beperking is onderdeel van Stichting Land Art Delft (LAD) en ligt ten zuiden van Delft in het open, laagveen polderlandschap.
Lees verder
Lees verder Uitbreiding bestaande woning in Bloemendaal
Studio Oosterwold ontwerpt en realiseert een duurzame verbouwing aan de tuinzijde van een bestaande woning in Bloemendaal voor een gezin bestaande uit 6 personen. Door de verbouwing ontstaat een riante keuken waarin uitgebreid gekookt, gegeten en genoten kan worden. Door de uitbreiding ontstaat er een mooie lichtinval in de woning.
Lees verder