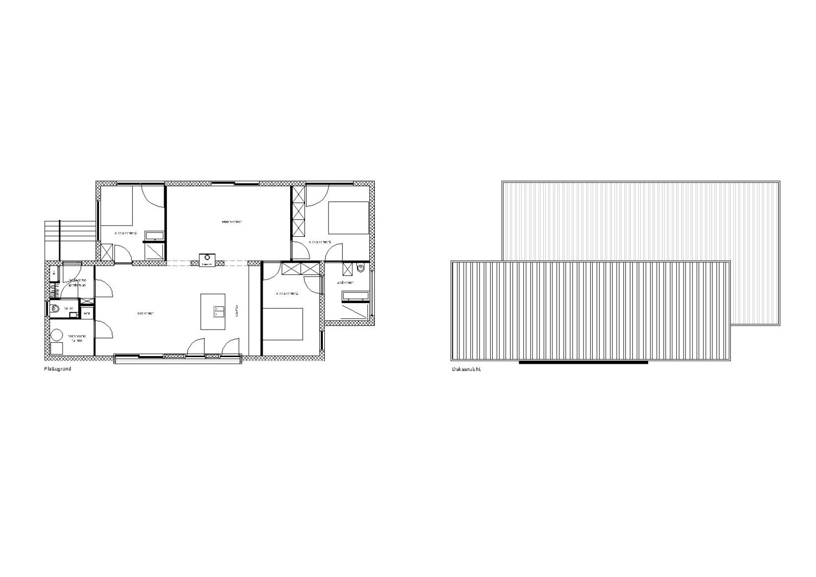
Duurzame architectuur

Voor een slim en duurzaam ontwerp dat past bij jouw budget ben je bij Studio Oosterwold aan het juiste adres! Wij ontwerpen duurzame woningen en bedrijfsruimtes. Naast onze ambitie om de optimale ecologische materialen toe te passen en energie neutraal te ontwerpen denken we goed na over comfort, bouwkosten, logische plattegronden, het toekomstig (her)gebruik en de levensbestendigheid van ons ontwerp. Inmiddels wordt ons vrijwel 100% circulaire bouwconcept in 2 nieuwbouw woningprojecten gerealiseerd!

Uniek

Ieder mens is uniek, net als jouw toekomstige woning! De reis van het ontwerp tot het realiseren van jouw droom verloopt bij Studio Oosterwold in overzichtelijke, heldere stappen. Per fase stemmen we de plannen duidelijk af. Dit is een dynamisch traject waarin de wensen steeds helderder worden vertaald in het ontwerp.

Duurzaam

Een duurzaam ontworpen woning begint bij de visie en het ontwerp! Een kleinere, ecologische woning bespaart grondstoffen en wordt gerealiseerd met milieuvriendelijke materialen. Hierdoor wordt het milieu minder belast. Wij bouwen bij voorkeur circulair met zo min mogelijk beton. De fundering die we in dergelijke woningen toepassen zijn van houtskelet i.c.m. buispalen en stalen frame. Dit bespaart geld, gewicht en belastende materialen voor het millieu (zoals isolerend EPS-schuim). Daarnaast is de bouwtijd aanzienlijk korter en kan de woning door betere isolatie materialen toe te passen energiezuiniger en comfortabeler worden gerealiseerd. 

Realisatie

Studio Oosterwold werkt nauw samen met verschillende partijen die garant staan voor een degelijke en duurzame bouw van jouw woning. Wij verzorgen indien gewenst de aanvraag van de vergunningen en de contacten met de gemeente. Tevens begeleiden wij de bouw op de bouwplaats zodat de woning conform de specificaties en kwaliteitseisen wordt gerealiseerd.

Ben je benieuwd wat de mogelijkheden voor jouw duurzame droom zijn? Neem contact met ons op om kennis te maken en de mogelijkheden te bespreken!

Home Wat we doen Architectuur