Woningen

Uitbreiding bestaande woning in Almere

Uitbreiding bestaande woning in Almere

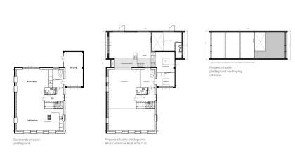
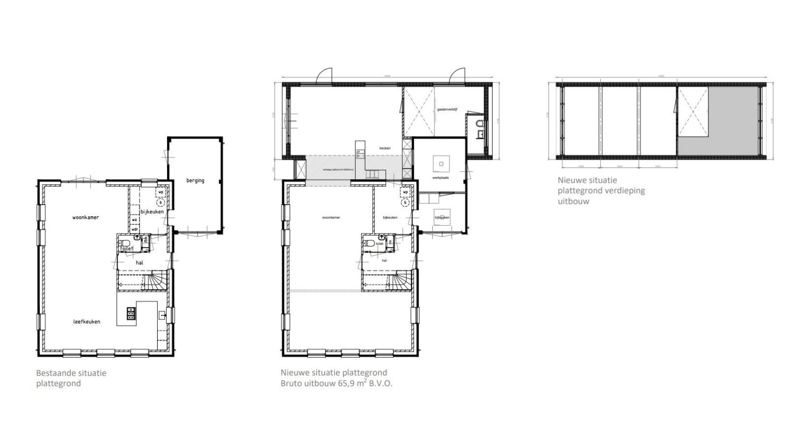
Studio Oosterwold verricht het volledige ontwerptraject incl. vergunningsaanvraag t.b.v. de uitbreiding en verduurzaming van een vrijstaande woning in Almere. De uitbreiding van 67m2 aan de achterzijde van de bestaande woning biedt ruimte voor woonkeuken en gastenverblijf. 

Het gastenverblijf is voorzien van eigen opgang met badkamer en toilet plus een ruime slaapverdieping bereikbaar via de vaste trap. Door tevens het interieurontwerp van dit project te verrichten ontstaat een mooi samenhangend geheel.

Door de verschillende bouwstijlen tussen bestaand en nieuw ontstaat een interessant geheel passend bij de omgeving. Door de toegepaste vorm, detaillering, gekozen materialen binnen en buiten ontstaat een mooi beeld.

De lichtinval is op de verschillende momenten van de dag bijzonder.

Specificaties:

Locatie: Almere Oosterwold

Kavelgrootte: 1.616 m2

Woningverbouwing (particuliere opdrachtgever)

Woninggrootte: 125 m2 + 67 m2 BVO exclusief vergunningsvrij

Omgevingsvergunning: ja

Werkzaamheden: voorlopig ontwerp, definitief opwerp, uitwerking, definitief ontwerp, BENG- en mpg-rapportage, interieurontwerp, BIM, aannemerselectie, bouwbegeleiding

Fundering: uitbreiding bestaand

Bovenbouw: HSB-casco (gevel en dak), lariks gevelbekleding, dakpannen

Home Projecten Uitbreiding bestaande woning in Almere