Woningen

Ontwerp circulaire nieuwbouwwoning Almere

Ontwerp circulaire nieuwbouwwoning Almere

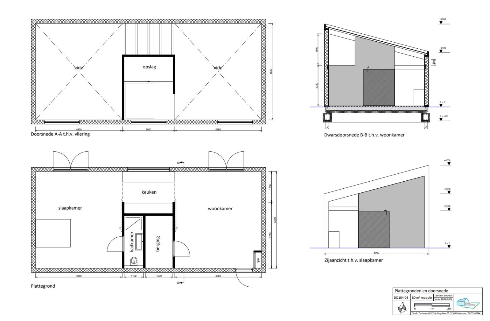
Unieke eigenschappen: met een zeer beperkt budget is een prachtige vrijstaande woning gerealiseerd. De gevel is aan de straatzijde (noorden) terughoudend en gesloten, de gevel aan de tuinzijde (zuiden) is open en uitnodigend. Bevat een logeerkamer op de vliering en 2 vides.

 

Specificaties:

Locatie: zelfbouwkavel Almere Oosterwold

Kavelgrootte: 1.200 m2

Woning (particuliere opdrachtgever)

Woninggrootte: 80 m2 BVO exclusief vergunningsvrij

Omgevingsvergunning: ja (incl. watervergunning)

Werkzaamheden: voorlopig ontwerp, definitief opwerp, uitwerking, definitief ontwerp, BENG- en mpg-rapportage, ecologisch onderzoek, BIM, aannemerselectie, bouwbegeleiding

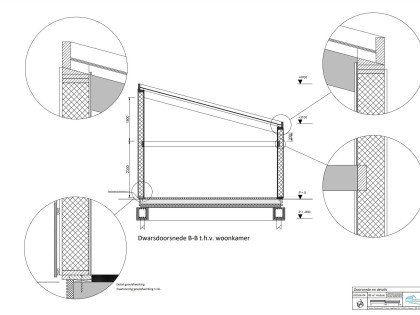
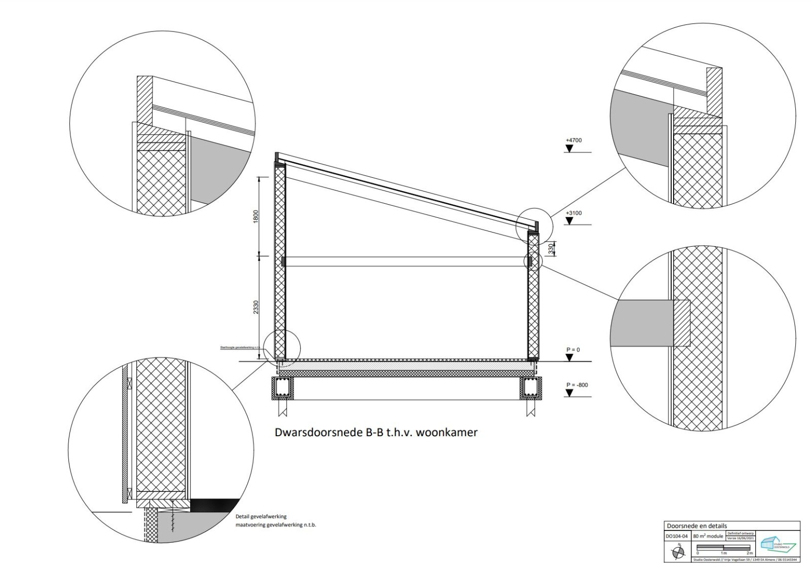
Fundering: heipalen i.c.m. verzinkt hoekstaal

Bovenbouw: HSB-casco (vloer, gevel en dak), lariks gevelbekleding, sinus dakbeplating

Techniek: warmtepomp, warmtepompboiler, PV-panelen

 

Geïnteresseerd in dit project of wil je meer informatie over de mogelijkheid voor nieuwbouw? Neem vrijblijvend contact met ons op om de mogelijkheden voor jou te bespreken! 

Home Projecten Ontwerp circulaire nieuwbouwwoning Almere