Woningen

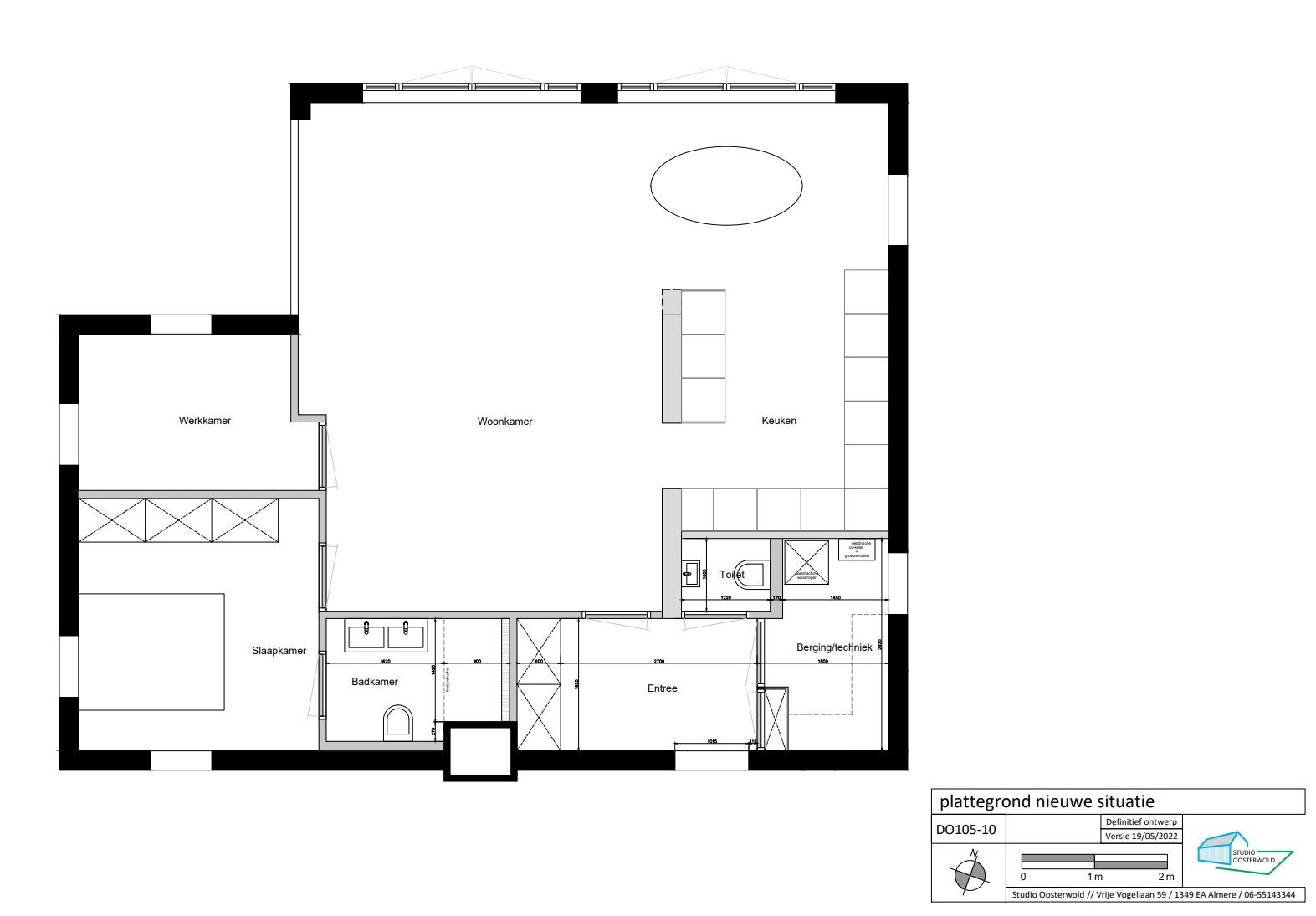
Verbouwing woning in Baarn

Verbouwing woning in Baarn

De gevel en dak van de bestaande woning was oorspronkelijk slecht geïsoleerd en voorzien van (gedeeltelijk) enkelglas beglazing. Alle kozijnen en deuren zijn vernieuwd en voorzien van nieuwe beglazing.

Locatie: zelfbouwkavel Almere Oosterwold

Kavelgrootte: 1.000 m2

Woningverbouwing (particuliere opdrachtgever)

Woninggrootte: 99 m2 BVO exclusief vergunningsvrij

Omgevingsvergunning: vergunningsvrij

Werkzaamheden: voorlopig ontwerp, definitief opwerp, uitwerking, definitief ontwerp, BENG- en mpg-rapportage, ecologisch onderzoek, BIM, aannemerselectie, bouwbegeleiding

Fundering: bestaand

Bovenbouw: HSB-casco (gevel en dak), lariks gevelbekleding, dakpannen

Techniek: hybride CV i.c.m. PV-panelen

 

Geïnteresseerd in dit project of wil je meer informatie over de mogelijkheid voor nieuwbouw? Neem vrijblijvend contact met ons op om de mogelijkheden voor jou te bespreken! 

Home Projecten Verbouwing woning in Baarn