Woningen

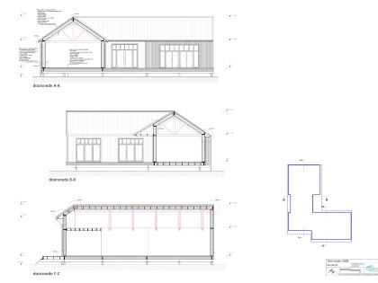
Circulaire vrijstaande woning in Almere

Circulaire vrijstaande woning in Almere

Deze vrijstaande circulaire woning staat middels 12 heipalen op 6 stalen IPE-liggers. Op deze fundering is de opbouw bestaande uit woning en vlonder volledig in houtskeletbouw geplaatst. Door de uitstekende isolatie van de vloer, gevel en dak betreft dit een energie neutrale  woning.

Specificaties:

Locatie: zelfbouwkavel Almere Oosterwold

Kavelgrootte: 879 m2

Woning (particuliere opdrachtgever)

Woninggrootte:130 m2 BVO

Omgevingsvergunning: ja (incl. watervergunning)

Werkzaamheden: voorlopig ontwerp, definitief opwerp, uitwerking, definitief ontwerp, BENG- en mpg-rapportage, ecologisch onderzoek, BIM, aannemerselectie, bouwbegeleiding

Fundering: 15 buispalen i.c.m. verzinkte IPE-balken

Bovenbouw: HSB-casco (vloer, gevel en dak), lariks gevelbekleding, vezelcement dakbeplating

Techniek: warmtepomp, warmtepompboiler, PV-panelen

 

Geïnteresseerd in dit project of wil je meer informatie over de mogelijkheid voor nieuwbouw? Neem vrijblijvend contact met ons op om de mogelijkheden voor jou te bespreken! 

Home Projecten Circulaire vrijstaande woning in Almere