Bedrijfspanden

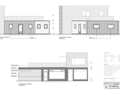
Verduurzaming/nieuwbouw kantoorruimte in Huizen

Verduurzaming/nieuwbouw kantoorruimte in Huizen

Specificaties:

Locatie: Havenstraat Huizen

Kavelgrootte: 560 m2

Bedrijfspand (zakelijke opdrachtgever)

Grootte: 100 m2 BVO exclusief vergunningsvrij

Omgevingsvergunning: ja

Werkzaamheden: sloop, asbestsanering, voorlopig ontwerp, definitief opwerp, uitwerking, definitief ontwerp, BENG- en mpg-rapportage, BIM, aannemerselectie, bouwbegeleiding

Fundering: staal op zand, betonvloer

Bovenbouw: HSB-casco (gevel en dak), lariks gevelbekleding, dakterras

 

Geïnteresseerd in dit project of wil je meer informatie over de mogelijkheid voor nieuwbouw? Neem vrijblijvend contact met ons op om de mogelijkheden voor jou te bespreken! 

Home Projecten Verduurzaming/nieuwbouw kantoorruimte in Huizen