Verbouwing

Verbouwing en verduurzaming vrijstaande woning in De Bilt

Verbouwing en verduurzaming vrijstaande woning in De Bilt

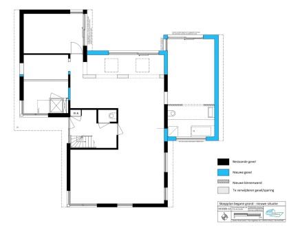
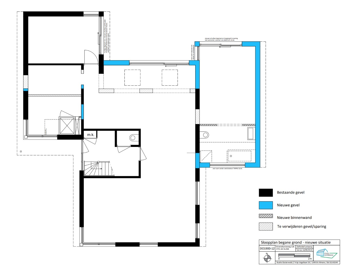
De bestaande woning is op velerlei fronten aangepast en uitgebreid. Door de toevoeging van 45m2 uitbouw aan de zijkant en achterzijde van deze vrijstaande woning is een levensbestendige uitbreiding van een keuken, slaapkamer en badkamer gerealiseerd.

De uitbouw is gefundeerd op een PS-vloer en gerealiseerd in een gemetseld buitenblad i.c.m. een HSB-binnenblad. Door deze opbouw is een uitstekend isolerende buitengevel ontstaan, voorzien van hoogwaardige kozijnen en schuifpuien.

De uitbouw voldoet qua toegepaste materialen en afwerking aan een uitstekend energielabel waardoor de woning middels vloerverwarming en warmtepomp wordt verwarmd.

Deze verbouwing betekent een stap naar een nieuwe fase voor de bewoners: door de duurzame aanpassing en uitbreiding ontstaat meer ruimte en comfort.

Door de aanpassing is woning vrijwel energie neutraal en uiteraard  levensbestendig gemaakt.

 

Geïnteresseerd in dit project of wil je meer informatie over de mogelijkheid voor nieuwbouw? Neem vrijblijvend contact met ons op om de mogelijkheden voor jou te bespreken! 

Home Projecten Verbouwing en verduurzaming vrijstaande woning in De Bilt