Verbouwing

Verbouwing duurzame bedrijfsunit Veemkade te Amsterdam

Verbouwing duurzame bedrijfsunit Veemkade te Amsterdam

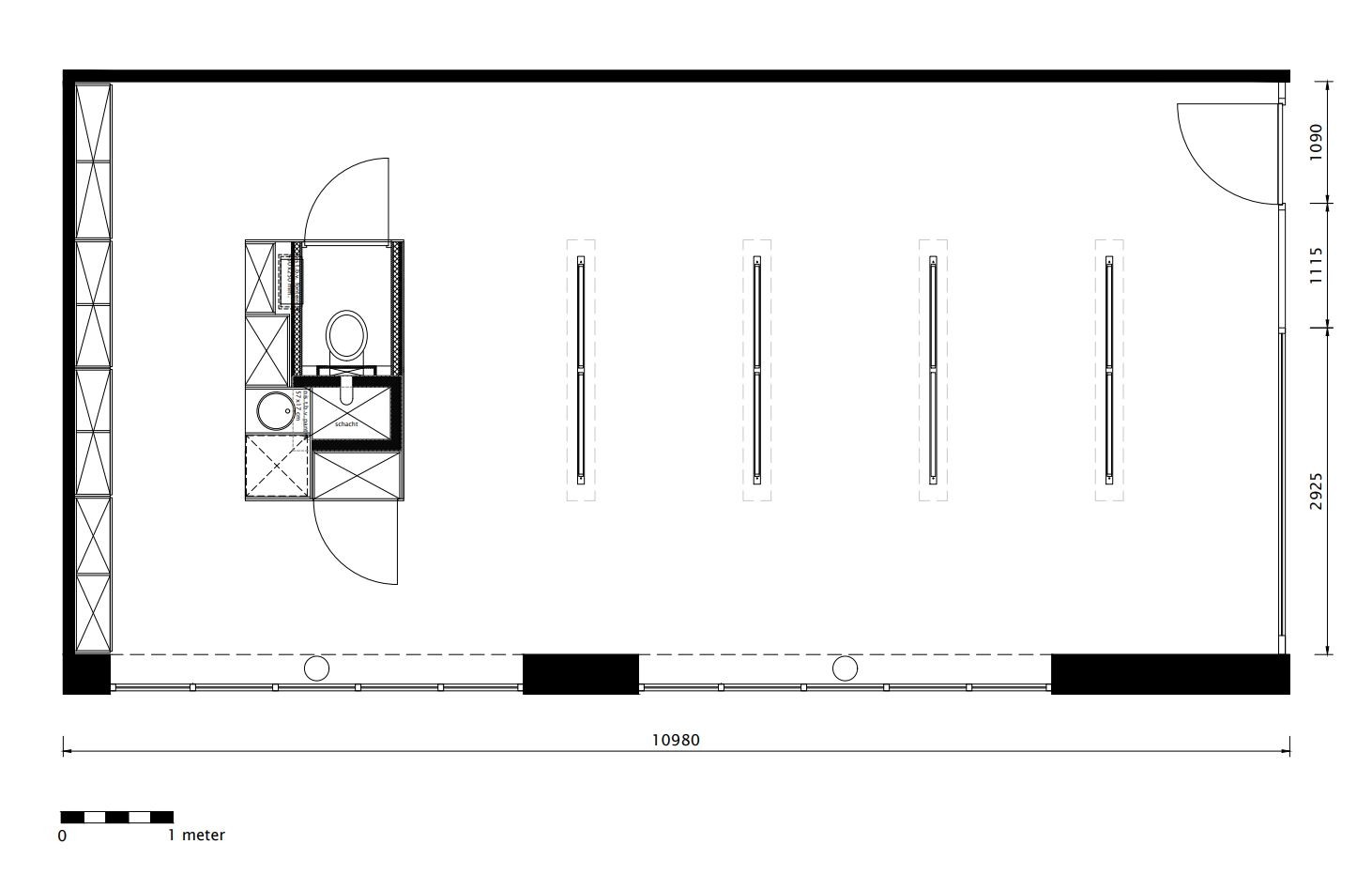
Studio Oosterwold heeft in opdracht van de eigenaar van deze bedrijfsunit nabij Pakhuis de Zwijger in Amsterdam duurzaam verbouwd en het inrichtingsplan ontwikkeld. Deze bedrijfsunit is 63m2 groot en prachtig gesitueerd aan de Veemkade.

De isolatie van de vloer van de bedrijfsunit is verbeterd en voorzien van vloerverwarming gekoppeld aan stadsverwarming. De ventilatie is verbeterd en gekoppeld aan een WTW-systeem.

De inrichting van de unit is centraal rondom de schacht achterin de unit gesitueerd. Hierdoor ontstaan compacte modules voor toilet, pantry, techniek en opslag.

Voor deze bedrijfsunit zijn verlichtingsarmaturen op maat ontwikkeld waardoor de uitstraling van de casco betonwanden wordt versterkt.

Kunstenaar Moritz Ebinger heeft voor dit interieurontwerp voor Studio Oosterwold een scrafitto wand aangebracht in een 2cm dikke stuclaag.

Home Projecten Verbouwing duurzame bedrijfsunit Veemkade te Amsterdam