Woningen

Ontwerp circulaire nieuwbouwwoning Almere

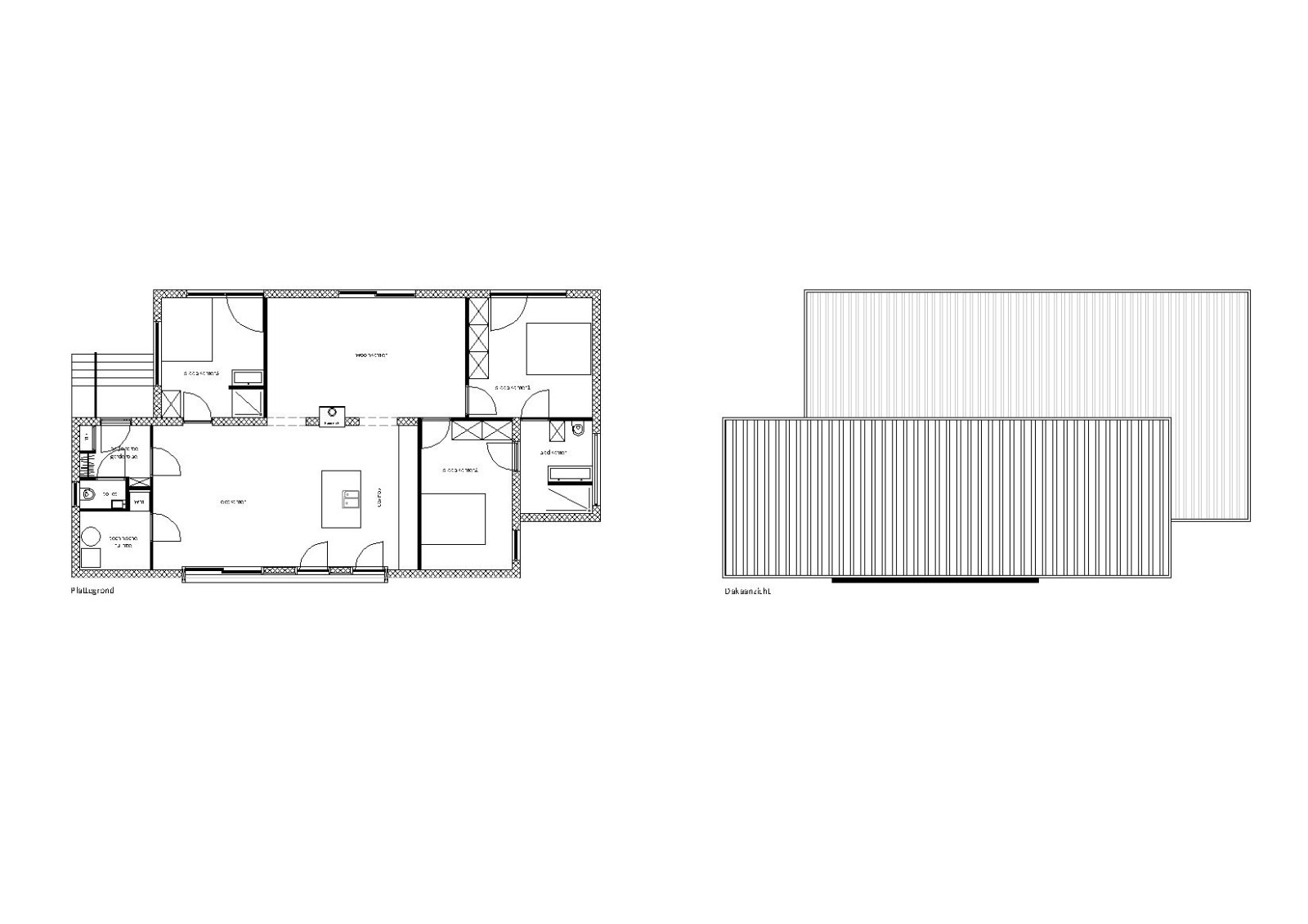
Studio Oosterwold heeft deze vrijwel volledig circulaire vrijstaande woning ontworpen.

Unieke eigenschappen: de vrijstaande woning staat middels heipalen op een verzinkte staalconstructie van L-profielen. Op deze fundering is de opbouw volledig in houtskeletbouw geplaatst. De vloer, gevel en dakisolatie is extreem hoog zodat een duurzame woning is gerealiseerd. 

Specificaties:
Locatie: zelfbouwkavel Almere Oosterwold
Kavelgrootte: 2.001 m2
Woning (particuliere opdrachtgever)
Realisatie: 2024
Woninggrootte: 130 m2 BVO exclusief vergunningsvrij
Omgevingsvergunning: ja (incl. watervergunning)
Werkzaamheden: voorlopig ontwerp, definitief opwerp, uitwerking, definitief ontwerp, BENG- en mpg-rapportage, ecologisch onderzoek, BIM, aannemerselectie, bouwbegeleiding
Fundering: heipalen i.c.m. verzinkt hoekstaal
Bovenbouw: HSB-casco (vloer, gevel en dak), lariks gevelbekleding, sinus dakbeplating
Techniek: warmtepomp, warmtepompboiler, PV-panelen

Geïnteresseerd in dit project of wil je meer informatie over de mogelijkheid voor nieuwbouw? Neem vrijblijvend contact met ons op om de mogelijkheden voor jou te bespreken! 

Home Projecten Ontwerp circulaire nieuwbouwwoning Almere